

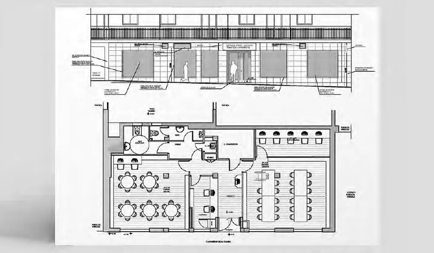
Biblioteca Pública en Carabanchel
- Situación: Carabanchel (Madrid)
- Cliente: Obra Social de Caja Madrid
- Fecha: 2007
- Superficie: 210 m2
- Proyecto: Básico de Ejecución y Direccion de Obra y Gestión de Licencias Urbanísticas
Proyecto
BÁSICO, EJECUCIÓN, GESTIÓN DE LICENCIAS URBANÍSTICAS Y DIRECCIÓN DE OBRA DE REFORMA E INSTALACIÓN DE BIBLIOTECA PÚBLICA.
Es objeto de este Proyecto Básico y de Ejecución la reforma interior de un local destinado a Biblioteca Pública situado en la planta baja de un edificio existente.
Se mantiene a grandes rasgos una distribución muy similar a la existente. Se hace accesible a minusválidos. Se distribuyen los distintos espacios con mamparas de vidrio para darle una mayor amplitud. Se reforman y amplían al máximo los huecos para aprovechar al máximo la luz natural y se cuidan los acabados dotando a la biblioteca de un ambiente muy luminoso y relajado.


